These Homes
  • Log In
  • Register
Skip to content
  • Home
  • Properties
  • Allocations
  • Help
  • About
  • Landlords
  • Contact

2 Northfield Terrace, Chirnside, Duns, Berwickshire, TD11 3XY

  • 2 bedroom 1st floor four in a block upper floor without lift
  • Chirnside
  • Scottish Borders
Berwickshire Housing Association
Berwickshire Housing Association
Advert Status
Open
Closing Date
9th December 2025 at 11:00am

There are 6 days left to apply

To apply for this property please

Register or Log In
Rent
£95.22 per month

Property Description

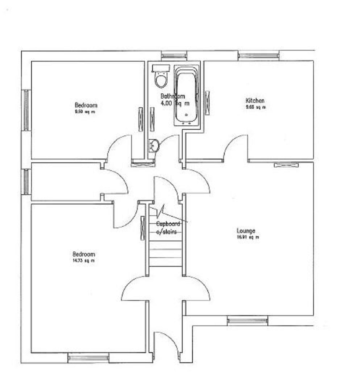
Situated in an elevated terrace in the centre of the village, this 2 bedroom upper flat, suitable for up to 3 people, is within walking distance of shops, bus route, health centre and other amenities. The property has solid fuel heating (Coal), shower over bath and has an integrated cooker.  Please note that the cooker is not part of the tenancy and that the new tenant must take ownership of it, alternatively BHA can remove it if required.  There is a garden areas to to the rear and on-street parking.

Couples applying for this property will be considered the same as families.

Chirnside has a co-op food shop, newsagents, pubs, chip shop, and chemist. Chirnside is approximately 9 miles from Berwick upon tweed where the nearest train station is located along with many shops. 

Criteria for Eligibility and Shortlisting

Required
Maximum need of 2 bedrooms and 3 bedspaces
Minimum need of 1 bedroom and 1 bedspace
Age of applicant is 16 or over
Unsuitable for
Need for wheelchair adapted property
Need for wheelchair access
Need for wet floor shower
Need for walk in shower
Need for ground floor property
Need for 4 bedrooms
Very highly preferred
Need for 2 bedrooms and 2 bedspaces
Need for 2 bedrooms and 3 bedspaces
Need for 1 bedroom and 2 bedspaces
Slightly preferred
Need for 1 bedroom and 1 bedspace

Other Details

  • Housing Type General Needs
  • Energy Performance Certificate D
  • Garden Rear
  • Parking On Street
  • Access Stepped
  • Heating Full
  • Heating Fuel Solid Fuel
  • Central Heating Type Back Boiler
  • Council Tax Band A

View location on map

Advert number
113764
Number of applications
11
  • About These Homes
  • Help
  • Properties
  • Contact
  • Terms & Conditions
  • Privacy Policy
  • Accessibility
These Homes

Copyright © 2025 These Homes

Admin Log In